Mark
Mark

Huis Vos — Den Haag


2018 - 2020
woonhuis
in opdracht van particulier







Vlakbij de duinen van Kijkduin hebben we het ontwerp gemaakt voor een XL-Tiny-House. Onze opdrachtgeefster neemt niet meer ruimte dan ze voor zichzelf nodig heeft en reserveert een groot gedeelte van haar huis voor vrienden, familie en andere bezoekers. Het huis krijgt rondom een groene gevel: geribd metselwerk en klimplanten verweven zich in een organisch patroon waarmee het gebouw letterlijk verankerd wordt in haar groene omgeving.

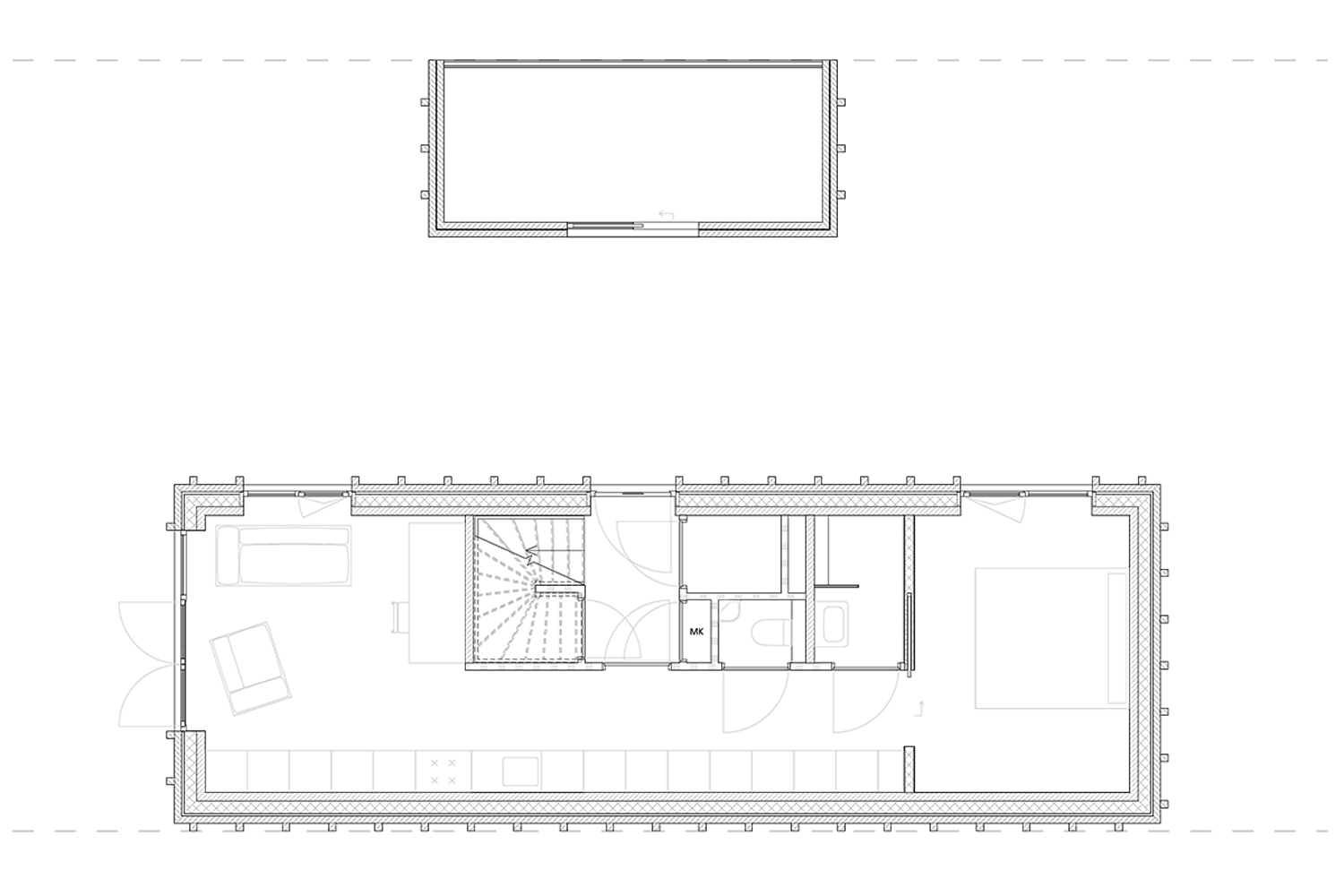
De uitdaging bestond er uit om een woningindeling te ontwerpen die compact is en tegelijkertijd voldoende rust en privacy biedt voor een gastenverblijf of kangoeroewoning. Daarnaast moest de plattegrond specifiek genoeg zijn om aan te sluiten bij de huidige woonwensen en flexibel genoeg om met minimale ingrepen veranderend gebruik op te kunnen nemen. Onze oplossing is een centrale utilitaire kern met aan weerszijden vrij te gebruiken woonruimtes die verbonden worden door een multifunctionele gang. Vervolgens hebben we de ruimtes zo gerangschikt dat het programma, het uitzicht en het daglicht mooi op elkaar afgestemd zijn.

Aan de noordelijke zijde langs de straat, bevinden zich kamers met veel privacy die bijvoorbeeld geschikt zijn als slaapkamer of studeerkamer. De open woonruimtes zijn op het zuiden gericht en hebben ruim uitzicht over de tuin en het duinmeer. De entree ligt centraal in het huis, omringd door de trap, bergruimtes, technische ruimtes, toiletten en badkamers. Langs de dichte zijgevel op de erfgrens met de buren ligt een multifunctionele zone die alle ruimtes met elkaar verbind. Deze ruimte is tegelijkertijd gang, garderobe, keuken, werkplek, dressoir, boekenkast, inloopkast en zichtlijn op het meer.

Het resultaat van deze organisatie is een lang en smal huis, met dezelfde plattegrond op de begane grond als op de verdieping.  De eenvoudige vorm van het huis en de beperkte hoeveelheid materialen en gevelopeningen dragen bij aan het kleinschalige karakter van het huis. Een bijkomend voordeel van de geringe breedte is de brede zijtuin waardoor het huis vrij blijft staan ten opzichte van de buren. Verdiepingshoge ramen kijken uit op de zijtuin terwijl de straatgevel gesloten is gebleven voor meer privacy. Deze bijzondere keuze voor een blinde straatgevel abstraheert het huis tot een sculpturaal object en laat het bijzondere patroon van groen en metselwerk goed tot zijn recht komen.

Het lijnenpatroon in het rossige zandkleurig metselwerk verwijst naar de geribbelde lijnen in het zand langs de kust. Het patroon bestaat afwisselend uit lange ribben en ingekorte ribben die plaats maken voor de planten die vanuit de tuin omhoog klimmen. De inname van het gebouw door de natuur eindigt in een golvende lijn die doet denken aan het nabijgelegen duinlandschap. Naast de groene gevel komt het milieuvriendelijke ontwerp tot uiting in de dikke muren en de bestendige bouwmaterialen. De geanodiseerde aluminium kozijnen en het metselwerk kunnen zonder verdere behandeling de zware omstandigheden in het kustgebied langdurig verdragen en hebben een mooie materiaaleigen kleur en structuur.

Ondanks haar bescheiden uiterlijk is huis Vos een positief statement van consciëntieus opdrachtgeverschap, zoals niet meer bouwen dan nodig, ruimte delen, wonen en zorg combineren, metselwerk als ambacht stimuleren, en veel groen in het straatbeeld inbrengen.

Mark
copyright 2025 GAAGA 
follow us on Instagram ︎